Binnenweg 25

Binnenweg 25

BREDA

vraagprijs

verkocht

Ook uw woning of bedrijfspand succesvol verkopen? Neem dan contactmet ons op

Gratis waardebepaling

Omschrijving

Ruime twee-onder-een-kap woning met garage en oprit gelegen in de wijk Gageldonk. De woning is ideaal gelegen ten opzichte van diverse uitvalswegen, zoals de A16 en A27. Op korte afstand bevinden zich een winkelcentrum, basisscholen en middelbare scholen. Het station Breda-Prinsenbeek alsook het stadscentrum van Breda bereik je binnen 10 fietsminuten. De woning ligt in een rustige straat zonder doorgaand verkeer. De fraai aangelegde achtertuin is een heerlijke plek om tot rust te komen en te genieten.

BEGANE GROND
Op de begane grond bevinden zich de hal, toiletruimte, woonkamer, keuken, bijkeuken en garage.

ENTREE WONING
Via de entree kom je in de hal van de woning. De hal is afgewerkt met een tegelvloer en stucwerk. De meterkast heeft 6 groepen met 1 aardlekschakelaar. De moderne toiletruimte is geheel betegeld en voorzien van een zwevend toilet met fonteintje.

WOONKAMER
De L-vormige woonkamer heeft aan de voorzijde een zithoek met open haard. Aan de achterzijde is de eetkamer, die door een schuifpui in directe verbinding staat met de achtertuin. De woonkamer is afgewerkt met een tegelvloer en spachtelputz.

KEUKEN
De keuken heeft een marmeren aanrechtblad en is voorzien van veel kastruimte. Er zijn diverse inbouwapparaten waaronder een oven, koelkast, vaatwasser en 4 pits gaskookplaat met afzuigkap. Heel handig is de bijkeuken waar de aansluiting voor de wasapparatuur is. Via de bijkeuken heb je toegang tot de garage en de achtertuin.

EERSTE VERDIEPING
Op de eerste verdieping zijn 3 slaapkamers en de badkamer.

SLAAPKAMERS
Slaapkamer 1 achterzijde ca. 2,6 x 5,3 m.
Slaapkamer 2 voorzijde ca. 3,6 x 2,9 m.
Slaapkamer 3 voorzijde ca. 3,6 x 2,2 m.
De slaapkamers zijn afgewerkt met tapijt en behang.

MODERNE BADKAMER
De moderne ruime badkamer is geheel betegeld en voorzien van een douchecabine, toilet en wastafelmeubel.

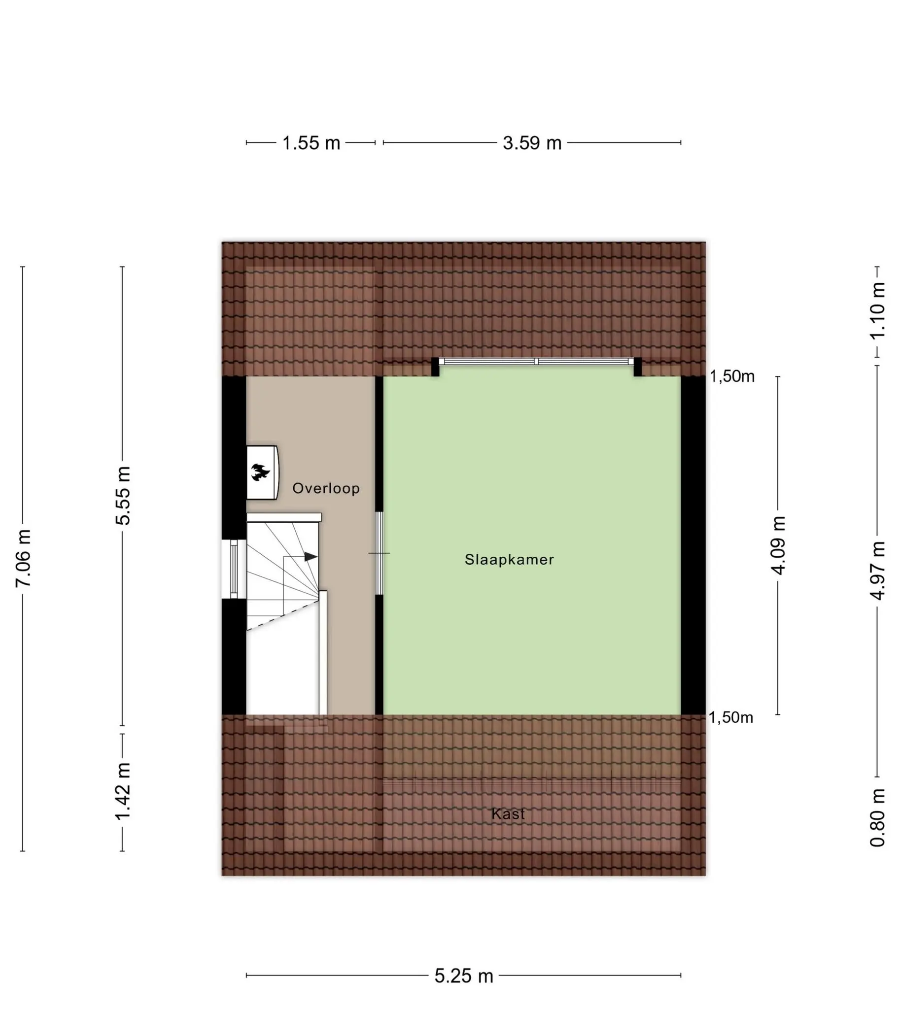
TWEEDE VERDIEPING
Op de tweede verdieping is de overloop en een ruime slaapkamer. Op de overloop is de cv-ketel gesitueerd, hier kan eventueel ook de wasapparatuur geplaatst worden.

De ruime slaapkamer heeft een dakkapel aan de achterzijde en is afgewerkt met tapijt. Achter knieschotten is extra bergruimte gemaakt.

TUIN
De fraai aangelegde tuin is gelegen op het noordoosten en is voorzien van diverse plantenborders en terrassen. De tuin heeft een goede ligging zodat er zowel zon als schaduw te vinden is.

ALGEMEEN
- Schilderwerk 2022.
- Platte daken zijn vernieuwd.
- Garage met openslaande deuren.
- Goed onderhouden woning.
Lees meer

Kenmerken

Overdracht

Status
verkocht
Aanvaarding
in overleg

Bouw

Soort woning
woonhuis
Soort woonhuis
eengezinswoning
Type woonhuis
twee onder een kapwoning
Aantal woonlagen
3
Bouwjaar
1988
Onderhoud binnen
goed
Onderhoud buiten
goed
Voorzieningen
tv kabel, schuifpui, dakraam
Isolatie
volledig geisoleerd

Energie

Energielabel
C
Verwarming
cv ketel
Warm water
cv ketel
C.V.-ketel
gas gestookte combi-ketel uit 2006, eigendom

Oppervlakten en inhoud

Woonoppervlakte
123 m²
Perceeloppervlakte
266 m²
Inhoud
521 m³
Inpandige ruimte oppervlakte
25 m²
Buitenruimte oppervlakte
21 m²

Indeling

Aantal kamers
5

Buitenruimte

Ligging
aan rustige weg, in woonwijk, beschutte ligging
Tuin
achtertuin met een oppervlakte van 90 m² en is gelegen op het noordoosten

Garage / Schuur / Berging

Garage
aangebouwde stenen garage
Parkeergelegenheid
op eigen terrein

Foto's

Locatie

Downloads

Video's

Vraag een bezichtiging aan of neem contact met ons op.